2 dormitorios con vista al jardín en Carrasco

147 Carrasco Norte, Montevideo

U$S 309.200

Dormitorios 2 Dormitorios
Baños 2 Baños
Superficie de Terreno 77 m2
Garage Si

Descripción

2 dormitorios con vista al jardín en Carrasco
Ubicada en Torre B, esta unidad de 2 dormitorios forma parte de un proyecto residencial que propone una forma de vivir donde el verde, la arquitectura y el bienestar cotidiano son protagonistas.

La unidad se destaca por su vista directa al jardín, un espacio cuidadosamente diseñado que funciona como el corazón verde del complejo. Esta relación visual con el jardín aporta luz natural, amplitud y una sensación de calma y privacidad, generando una experiencia de vivienda muy valorada y difícil de encontrar.

Se desarrolla en un predio de más de 6.000 m² y se organiza en 7 torres bajas, implantadas alrededor de un gran jardín central, pensado para articular la vida social del complejo y ofrecer un entorno natural, sustentable y de escala humana.

El proyecto se encuentra frente a The British Schools, en una de las zonas más buscadas de Carrasco Norte, combinando tranquilidad residencial con excelente conectividad urbana.

Características de la unidad:

Gastos comunes estimados: $13.822

Garaje individual: USD 25.000
Garaje doble: USD: 40.000

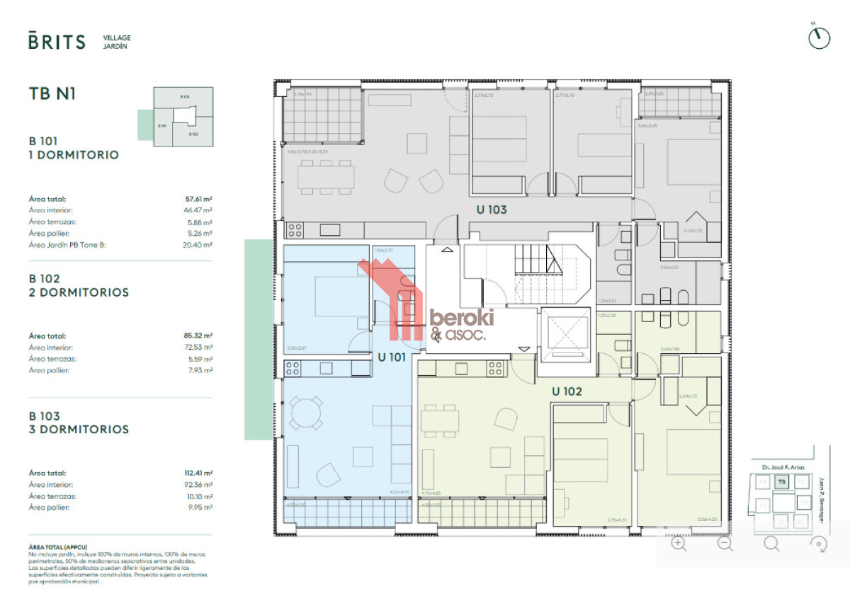
2 dormitorios

71,80 m² interiores

5,59 m² de terraza

7,93 m² de pallier

Superficie total: 85,32 m²

Precio: USD 309.200

Amenities del proyecto:

Pensados como una verdadera extensión del hogar y en diálogo permanente con el jardín:

Piscina interior climatizada

Piscina exterior

Gimnasio totalmente equipado

Sauna y sala de yoga pilates

Cowork business center

Sala gourmet y salón de eventos

Playroom

Rooftops con parrilleros

Seguridad y vigilancia

Cocheras y bauleras

Emprendimiento desarrollado por Estudio Luis E. Lecueder, referente indiscutido del mercado inmobiliario uruguayo, con una trayectoria que respalda la calidad del diseño, la ejecución y el valor a largo plazo del proyecto.

Una unidad ideal para quienes buscan vivir rodeados de verde, con diseño contemporáneo y acceso a amenities de primer nivel, en un entorno cuidado y consolidado.

Unidades disponibles – Tipología 2 dormitorios

Torre A
Unidad 102 – Vendido
Unidad 202 – USD 297.200
Unidad 302 – USD 300.200
Unidad 402 – USD 303.300
Unidad 502 – Vendido

Torre B
Unidad 102 – USD 303.100
Unidad 202 – USD 306.100
Unidad 302 – USD 309.200
Unidad 402 – USD 312.200
Unidad 502 – USD 315.400

Torre F
Unidad 102 – USD 294.300
Unidad 202 – USD 297.200
Unidad 302 – USD 300.200
Unidad 402 – Vendido
Unidad 502 – Vendido

Torre G
Unidad 102 – Vendido
Unidad 202 – USD 297.200
Unidad 302 – USD 300.200
Unidad 402 – USD 303.100
Unidad 502 – USD 306.200

Detalles de la Propiedad

  • BarrioCarrasco Norte
  • OrientaciónSur
  • Frente al MarNo
  • Total m277
  • Propios m272
  • Dormitorios2
  • Baños2
  • CocinaIntegrada
  • Living ComedorSi
  • PlayRoomSi
  • GarageSi
  • CalefacciónLosa Radiante
  • PlayroomSi
  • Serv.MucamasNo
  • Serv.PlayaNo
  • PiscinaInterior / Exterior
  • SaunaSi
  • GimnasioSi
  • CanchasNo
  • VigilanciaSi

Equipamiento

  • Cocina Electrica
  • Aire Acondicionado
  • Placard en dormitorios
  • Placard en cocina
  • Horno
  • Termotanque

Gastos y Impuestos