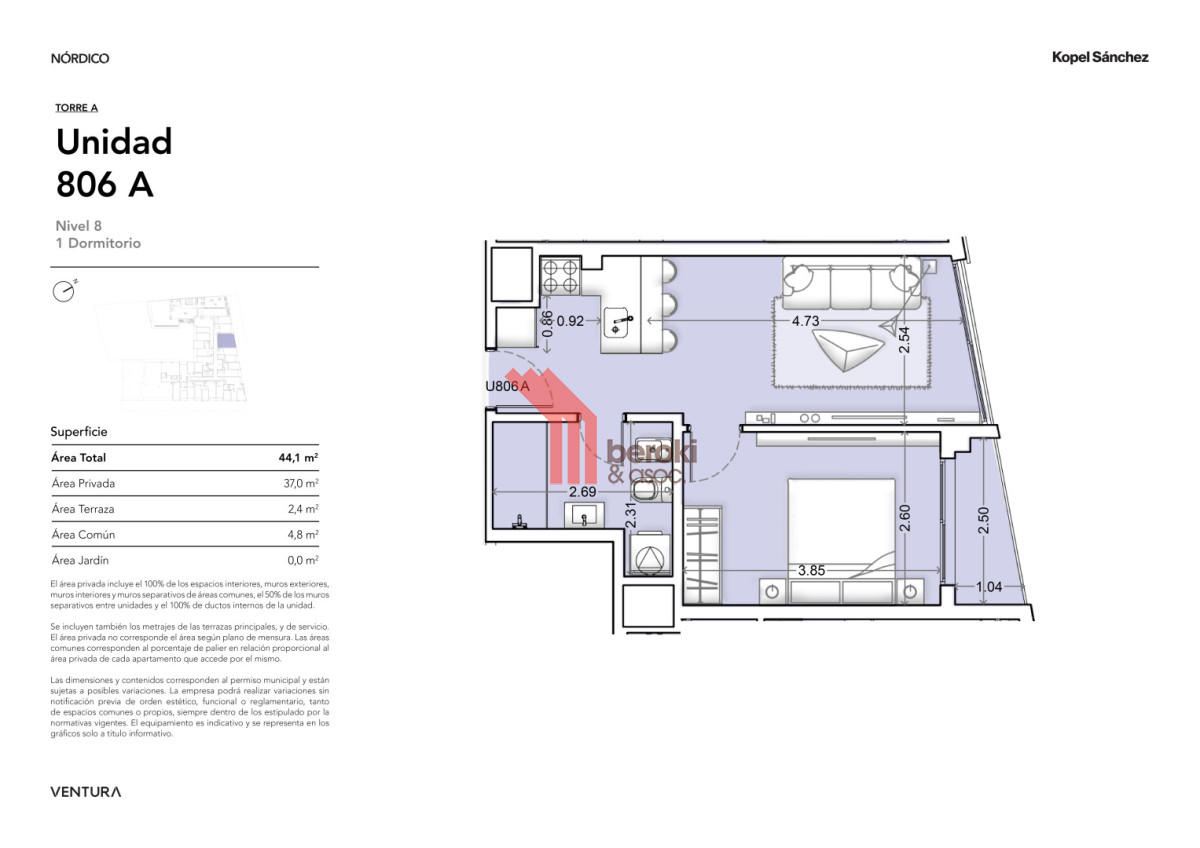
VENTA APTO 1 DORMITORIO, LA BLANQUEADA. PISO 8

107 La Blanqueada , Montevideo

U$S 158.900

Dormitorios 1 Dormitorios
Baños 1 Baños
Superficie de Terreno 44 m2

Descripción

VENTA APTO 1 DORMITORIO, LA BLANQUEADA. PISO 8
🏡 Encantador Apartamento de 1 Dormitorio en Piso 8 con Balcón y Amenidades Inigualables!

Características del apartamento:
Luminoso apartamento de 1 dormitorio, con una cocina integrada que armoniza perfectamente con el living y comedor, este espacio se convierte en el corazón de tu hogar, proporcionando un ambiente acogedor y funcional. Desde aquí, accedes a un hermoso balcón con vistas al frente ☕🌅

Ubicación y Amenidades:
El edificio cuenta con una gran variedad de amenidades que se adaptan a todas las edades. Entre ellas, encontrarás:
Gimnasio exterior para disfrutar de tu rutina de ejercicios.
Plaza con Juegos para Niños
Control de Acceso y Seguridad 24Hs
Espacios de Coworking
Huertas Urbanas y Barbacoas
Rooftop
Parque Pet Friendly
Salones para Eventos

Importante: Las fotografías de este anuncio son de un apartamento similar que reflejan el estilo y la calidad de los detalles en este espacio.


¡No dejes pasar la oportunidad de vivir en un lugar donde cada día es una nueva experiencia! Contáctanos y agenda tu visita.

Detalles de la Propiedad

  • BarrioLa Blanqueada
  • Vistaa la Ciudad
  • OrientaciónNorOeste
  • Total m244
  • Propios m237
  • Dormitorios1
  • Baños1
  • CocinaIntegrada
  • LivingSi
  • ComedorSi
  • Living ComedorSi
  • Comedor DiarioSi
  • LavaderoSi
  • ParrilleroBarbacoa

Gastos y Impuestos

  • Gastos Comunes: $ 5.000 (Mensual)